string(3) "574"

Циклон ЦН-15-600-6УП в Йошкар-Оле

Версия
для печати
В наличии на складе Цена в рублях с НДС 569 000
Получите скидку
у менеджера
Цена на циклон ЦН-15-600-6УП с доставкой от 569 000 рублей с НДС
Производительность циклона, м³/ч15260-24420
Доставка ТК в г. Йошкар-Ола и по России
Безналичный расчет
Опросный лист
Опросный лист
  • Технические
    характеристики
  • Описание
    товара
  • Дополнительно
    потребуется
  • Сертификаты и
    гарантии
  • Отзывы о
    продукции
  • Видео
    обзор
  • базовая модель из листа 4 ст 3
  • возможно изготовление из листов большей толщины и других марок сталей

Технические характеристики циклона ЦН-15-600-6УП

Тип циклона Циклон ЦН 15
Вид ЦН 15-600
Марка ЦН-15-600-6УП
Массовая концентрация пыли в очищаемом газе, не более: для слабослипающихся пылей, г/м³ 1000
Массовая концентрация пыли в очищаемом газе, не более: для среднеслипающихся пылей, г/м³ 250
Температура рабочей среды до, °С 400
Коэффициент гидравлического сопротивления 168
Внутренний диаметр корпуса циклона ЦН, мм 600
Количество циклонов в группе, шт 6
Площадь сечения цилиндрической части корпуса (группы корпусов), м² 1.7
Скорость, м/с 2.5-4
Рабочее сопротивление, Па 693-1774
Камера очищенных газов Есть
Вид камеры очищенных газов Улитка
Количество камер очищенных газов 6
Вид пылесборного бункера Пирамидальный
Количество пылесборных бункеров, шт 1
Объем пылесборного бункера, м³ 4.7
Размер пылевыгрузного окна бункера, мм 300х300
Размеры циклона ЦН (с учетом бункера): длина*ширина*высота, мм 2280х2300х5615
Масса блока циклонов, кг 1947
Бренд KVZR
Производительность циклона, м³/ч от 15260 до 24420

Циклоны ЦН 15 600 6УП в Йошкар-Оле

Циклоны ЦН 15 600 6УП используются для очистки аспирационного воздуха, а также для сухой очистки газов и воздуха, выделяющихся при некоторых процессах производства (обжиг, агломерация, сушка, сжигание топлива и т.д.). Пылеуловитель применяется: на предприятиях черной и цветной металлургии, в химической, нефтяной, машиностроительной промышленности, а также пылеуловитель эффективен на предприятиях энергетики, при производстве строительных материалов и т.д.

Циклоны типа ЦН 600х6УП являются самым простым видом пылеуловителей. Важно отметить, что циклоны могут использоваться для безотходного производства, так как некоторые виды пыли, что собраны этим пылеуловителем возможно подвергнуть переработке.

Применение циклонов ЦН-15-600-6УП НИИОГАЗ не разрешено во взрывоопасных средах; не рекомендуется их применять также для улавливания больших частиц пыли, особенно при небольших диаметрах циклонов. Степень очистки газов с помощью пылеуловителя во многом зависит от размера частиц пыли, чем больше их размеры, тем эффективней очистка.

Циклоны марки ЦН 15 600х6УП устройство

Групповые циклоны ЦН 15 600х6УП пылеуловители изготавливаются с камерой очищенного воздуха в виде "улитки". В групповом исполнении аппарат способен обеспечить очистку больших объемов газов.

Циклон группового исполнения производят с вращением потока газов "левого" или "правого" типа, одиночные циклоны существуют только с вращением "правого" типа.

Бункер циклона ЦН 15 600 6УП делается в форме пирамиды.

В технической характеристике представлены значения производительности циклона золоуловителя ЦН 15 600 6УП, относящиеся к скорости в цилиндрической части циклона (скорость составляет 2,5 и 4,0 м/с). В обычных условиях нормальной считается скорость 4,0 м/с. Скорость 2,5 м/с лучше всего принимать при работе с абразивной пылью.

В зависимости от температуры вокруг циклона, оборудование производится из углеродистой стали (температура менее -40 °С) и низколегированной стали (при температуре ниже -40 °С).

Конфигурация циклона рассчитана на температуру до 400 °С и разряжение (относится к давлению) 5(500) кПа (кгс/м2). Циклоны делаются как левого, так и правого исполнения. Они могут закрепляться как на нагнетании, так и на всасывающей линии вентилятора. При фильтрации воздуха от абразивной пыли, которая вызывает износ крыльчаток вентилятора, циклоны рекомендуется устанавливать перед вентилятором. В группе циклонов ЦН 15 600х6УП патрубки с выходом очищенного воздуха могут быть соединены сборным коробом с группой улиток каждого циклона, объединенных общим фланцем.

Аспирация циклон ЦН 15 600 6УП изготавливается согласно ГОСТ Р 51708-2001.

Принцип работы циклона ЦН-15-600-6УП

Выделение частиц из воздушной (газовой) среды происходит в основном под воздействием центробежной силы, возникающей при вращении воздушного потока в корпусе батарейного циклона ЦН 15 600х6УП. Запыленный воздух входит в циклон через тангенциальный патрубок и, приобретая вращательное движение, опускается винтообразно вниз вдоль внутренних стенок цилиндра и конуса. Небольшая часть этого потока, в котором сконцентрированы пылевые частицы, движется в непосредственной близости от стенок циклона и поступает через пылеотводящее отверстие в пылесборный бункер, где происходит осаждение и накопление пылевых частиц.

Под пылесборным бункером установлен пылевой затвор. Пылевой затвор служит для периодической или непрерывной разгрузки уловленной пыли из пылесборного бункера.

В центральной зоне циклона воздушный поток, освобожденный от пыли, поднимается винтообразно вверх и удаляется через выхлопную трубу наружу. На выходе выхлопной трубы или группы выхлопных труб в групповом циклоне ЦН 15 600 6УП установлена камера для сбора и перенаправления потока очищенной воздушной (газовой) среды в виде улитки. Улитка позволяет снизить выходное сопротивление золоуловителя.

Рекомендации по использованию циклонов типа ЦН 15 600х6УП

Для увеличения срока эксплуатации батарейные циклоны ЦН 15х600х6УП, которые подвергаются абразивному износу, в местах наибольшего износа (во входной и в нижней части корпуса) необходимо приваривать дополнительные листы с наружной стороны стенок циклонов. Циклоны диаметром меньше 800 мм по причине повышенного износа не рекомендуется применять для улавливания абразивной пыли.

При использовании группы циклонов пылевых ЦН 15 600х6УП должна быть гарантирована непрерывная выгрузка уловленной пыли. При этом уровень пыли в бункерах не должен превышать уровень плоскости, которая отстоит от крышки бункера на 0,5 диаметра циклона.

Условное обозначение циклона ЦН-15-600-6УП

Ц - обозначение циклона

Н - обозначение конструкции НИИОгаза

15 - наклон входного патрубка относительно горизонтали (угол наклона в градусах)

600 - обозначается внутренний диаметр цилиндрической части циклона (в мм.);

2 - количество циклонов в группе

У - камера очищенного газа - "улитка"

П - пирамидальная форма бункера

Основные параметры циклона ЦН 15 600х6УП

  • Температура очищаемого газа, °С не более 400
  • Давление (разрежение), кПа (кгс/м2) не более 5 (500)
  • Массовая концентрация пыли в очищаемом газе, г/м3:

для слабослипающихся пылей не более 1000

для среднеслипающихся пылей 250

  • Коэффициент гидравлического сопротивления:

с "улиткой" - 175;

для одиночных циклонов - 147.

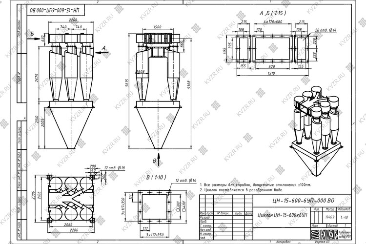
Габаритные и присоединительные размеры циклона ЦН 15 600 6УП

НаименованиеLBHH1H2H3DD1E
Циклон ЦН 15-600-6УП2075207550322870334314606003501900

НаименованиеFabL1L2BB1Масса, кг
Циклон ЦН 15-600-6УП1900110240611006802003102640

Циклон ЦН 15 600х6УП монтаж

Монтаж аппарата циклона ЦН 15 600 6УП производится согласно проектной документации, необходимо обеспечить беспрепятственный подход к золосливному отверстию пылесборного бункера. При монтаже подводящего газового тракта не допускается резких перегибов газоходов, резких сужений или расширений, что ведет к существенным искажениям пылегазового потока, образованию завалов и потерям давления. Отводящие газоходы приварить к боковым стенкам циклона пылеуловителя ЦН 15 600х6УП с центрированием по выходным отверстиям.

Подводящие и отводящие газоходы не должны передавать нагрузок на фланцы циклона.

Купить циклон ЦН 15 600 6УП

Завод изготовитель циклонов предлагает купить циклон ЦН 15 600 6УП в Йошкар-Оле, для этого вы можете сделать заявку в отдел сбыта по телефону (38-52) 29-97-41 (42), либо оформить заказ онлайн. Наши менеджеры дадут консультацию и рассчитают стоимость доставки до вашего региона и населенного пункта.

Дополнительное вспомогательное оборудование для работы циклона ЦН-15-600-6УП

Для эффективной и надежной работы циклона ЦН-15-600-6УП в вашей котельной вам потребуется дополнительное оборудование - затвор-мигалка МГ-300, газоход циклона, постамент циклона.

Цена 17 000 рублей с НДС

Производим газоходы по индивидуальному заказу. Системы газоходов могут включать в себя:

  • шиберы;
  • газоходы различного сечения;
  • переходы;
  • тройники;
  • карманы всасывающие ТДМ.
Цена 30 000 рублей с НДС

Производим постаменты и опоры циклонов по индивидуальному заказу.

Цена 50 000 рублей с НДС

Дополнительные услуги

Сертификат и качество циклона ЦН-15-600-6УП

Циклоны и золоуловители производства Котельный завод "РЭП" соответствуют строгим стандартам качества и безопасности.

Циклоны имеют декларацию соответствия Техническим регламентам Таможенного союза ТР ТС 010/2011 «О безопасности машин и оборудования».

Промышленный циклон ЦН-15-600-6УП включен в реестр российских производителей промышленного оборудования Минпромторг и имеют реестровую запись номер № 10729654 от 14.10.2025, сроком действия до 13.10.2028 подтверждающую российское происхождение продукции.

Промышленный циклон ЦН-15-600-6УП имеет гарантийный срок 24 месяца и срок работы при соблюдении правил монтажа и эксплуатации оборудования 10 лет.

Сертификат для золоуловителей .jpg
Сертификат на золоуловители
Сертификат о происхождении товара форма СТ-1 .jpeg
Сертификат о происхождении товара (форма СТ-1)

Отзывы о продукции

Отзыва о товаре пока нет, будьте первыми!

Циклоны являются наиболее распространенным газоочистным оборудованием. Циклон производит очистку газов в самых различных отраслях промышленности: в черной и цветной металлургии, химической и нефтяной промышленности, промышленности строительных материалов, энергетике и других. При небольших капитальных затратах и эксплуатационных расходах, циклоны в зависимости от характеристик улавливаемой пыли, типа и режима работы обеспечивают эффективность очистки газов и пылеулавливания 80-95 %.

Смотреть видеообзор на

Вопрос-ответ

  • Технические
    характеристики
  • Описание
    товара
  • Дополнительно
    потребуется
  • Сертификаты и
    гарантии
  • Отзывы о
    продукции
  • Видео
    обзор
Документы завода
  • Сертификаты завода
  • Членство в СРО
  • Аттестованная технология сварки
  • Патенты на котельное оборудование
  • Товарные знаки
Смотреть все документы
Сертификат на водогрейные котлы на твердом и жидком топливе
Сертификат на водогрейные котлы на газе и жидком топливе
Сертификат на котлы отопительные паровые КП
Сертификат на топки
Сертификат на щиты управления
Сертификат на скиповые подъемники
Сертификат на золоуловители (циклоны)
Сертификат на конвейеры скребковые
Сертификат на дробилки
Сертификат на клапаны предохранительные
Сертификат на бункер-накопитель механизированный
Сертификат на автоматику газовых горелок
Сертификат о происхождении товара форма СТ-1
Членство в СРО
Членство в СРО
Аттестованная технология сварки
Свидетельство аттестованной технологии сварки
Патент на отопительный котел
Патент на водогрейный котел
Патент на топку водогрейного котла
Патент на водогрейный газовый котел
Патент на водогрейный котел
Патент на топочное устройство твердотопливного котла
Патент на водогрейный котел
HEATEXPERT товарный знак
KVZR товарный знак
STEAMEXPERT товарный знак
Другая похожая продукция
Циклон ЦН-15-1-УП
Производительность циклона, м³/ч2540-4070
89 000 р. Цена с НДС
Циклон ЦН-15-2-УП
Производительность циклона, м³/ч5090-8140
170 000 р. Цена с НДС
Циклон ЦН-15-2-УП
Производительность циклона, м³/ч5090-8140
166 000 р. Цена с НДС
Циклон ЦН-15-4-УП
Производительность циклона, м³/ч10175-16280
372 000 р. Цена с НДС
Циклон ЦН-15-4-УП
Производительность циклона, м³/ч10175-16280
365 000 р. Цена с НДС
Циклон ЦН-15-6-УП
Производительность циклона, м³/ч15260-24420
581 000 р. Цена с НДС
Вы просматривали эти товары
Циклон ЦН-15-6-УП
Производительность циклона, м³/ч15260-24420
569 000 р. Цена с НДС
Котел на древесных отходах
Лизинг
Вид топкиРучная, Подовая
Максимальная тепловая мощность, МВт1.45
ТопливоТвердое, Дрова, Древесные отходы естественной влажности
Отапливаемая площадь, м²12200-16000
1 232 000 р. Цена с НДС
Котел на щепе 1160 кВт
Лизинг
Вид топкиВихревая, Автоматическая
Максимальная тепловая мощность, кВт1160
ТопливоЩепа
Отапливаемая площадь, м²7700-11000
2 571 000 р. Цена с НДС
Котел с водяными колосниками 1600 кВт
Вид топкиВодяные колосники, Ручная
Максимальная тепловая мощность, кВт1600
ТопливоТвердое, Уголь
Отапливаемая площадь, м²12500-16500
982 000 р. Цена с НДС
background